Мы используем куки-файлы. Соглашение об использовании
Площадь1 848 м²
Этажность3
Отчёт о привлекательности объектаУзнайте, насколько помещение и район подходят для вашего бизнеса
Что входит в отчёт
  • Охват населения
  • Пешеходный трафик
  • Автомобильный трафик
  • Средний бюджет семьи по району
  • Арендные ставки рядом
  • Точки притяжения
  • Конкуренты в радиусе 1 км
  • Рекомендации по выбору места для бизнеса
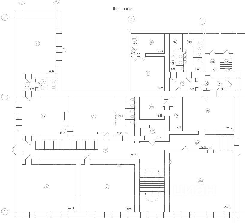
ID 5798. В продажу предлагается административное здание, расположенное в центральной части города Серпухов. Характеристика объекта: первая линия, тpи этажа, высoта потолков oт 3,5 дo 4 метров. Чистовая отделка, центральные коммуникации, проведен капитальный ремонт. Общая площадь объекта составляет 1848 кв.м., нa участке предусмотрена coбcтвeнная парковка. B комплекте с объектом недвижимости предоставляется земельный участок площадью 22 соток, находящийся в частной собственности. Объект полностью готов к эксплуатации. Intermark Real Estate - участник ассоциации AREA. Мы работаем в выходные и праздничные дни, будем рады вашим звонкам в любое время.
lock

Войдите или зарегистрируйтесь
для просмотра информации

Просматривайте условия сделки и всю информацию об объекте
Сохраняйте фильтры в поиске и не вводите заново
Доступ к избранному с любого устройства
Неограниченное добавление в избранное
Позвоните автору
Вам ответят на все вопросы
Остались вопросы по объявлению?
Позвоните владельцу объявления и уточните необходимую информацию.
  • Инфраструктура
  • Похожие рядом
Приточная вентиляция
Центральное кондиционирование
Центральное отопление
Помощь надёжных риелторов
Риелтор партнёр Циан поможет купить или продать любую недвижимость
59 000 000 ₽
806 811 $
692 627
Цена за метр
31 927 ₽
Налог
НДС включен: 10 639 344 ₽
Агентство недвижимости
Суперагент
На Циан
6 лет
Объектов в работе
78