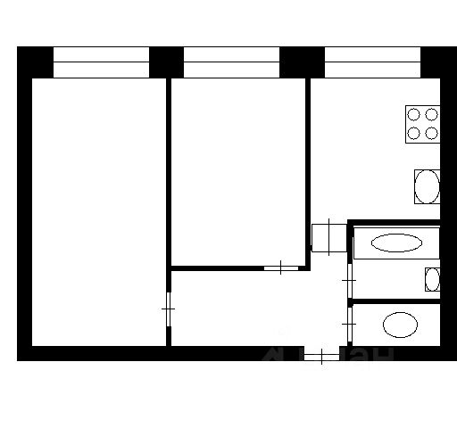
Продается трехкомнатная квартира на 7 этаже в многоквартирном доме. Без альтернативы физически и юридически свободна. Без отделки. Все комнаты раздельные, площадью 18,0, 12,3 и 12,3 кв. м. Два санузла: 1,1 кв. м и 4,2 кв. м. Кухня площадью 13 кв. м. Застекленная лоджия 4 кв. м, с выходом на маленький балкон без остекления площадью 1,3 кв. м. Отопление работает в зимний период исправно (батареи очень горячие). Стеклопакеты сделаны качественно не дует, не заливает, включая лоджию.
Один совершеннолетний собственник. Никто не зарегистрирован ни по месту жительства, ни по месту пребывания. Налоги и коммунальные услуги за квартиру оплачены полностью, задолженностей нет и не было.
Прекрасный вид из окон. Три окна (кухня и две комнаты) с видом во двор и на большое поле. Одно окно (комната) с видом на город. Парковка перед домом большая. Мест хватает.
Поселок Пролетарский входит в городской округ Серпухов и полностью обеспечен всем необходимым для повседневной жизни и отдыха. В поселке в пешей доступности от дома: магазины, пункты доставки товаров, отделение Почты России, МФЦ, река Нара, детский сад, школа, Чеховский техникум, Подворье Патриарха Московского и всея Руси, а также многое другое.
Дом расположен на берегу небольшой реки Городенка, которая впадает в реку Нара. Рядом небольшой сосновый лес. Напротив дома автобусная остановка, с которой можно без пересадки доехать до Москвы (станция метро Лесопарковая), Серпухова (ж/д станция), Чехова (автовокзал и ж/д станция). На автомобиле от дома до МКАД 68 км. Через Симферопольское шоссе время в пути обычно 50 минут. От дома до ближайшей ж/д станции Шарапова Охота 7,5 км. Время в пути: на автомобиле 12 минут, на автобусе 20 минут плюс пешком 15 минут, на такси 300 рублей. От ж/д станции Шарапова Охота до Москвы на электричке примерно 50 минут.
Недалеко от посёлка расположены такие достопримечательности, как Вознесенская Давидова пустынь (село Новый Быт), Подворье Вознесенской Давидовой пустыни и Источник преподобного Давида (село Талеж), Серпуховский музыкально-драматический гортеатр (г. Серпухов), Высоцкий Зачатьевский мужской монастырь (г. Серпухов), река Ока с новым песчаным благоустроенным пляжем (г. Серпухов), Музей Усадьба Лопасня-Зачатьевское (г. Чехов), Музей-заповедник А.П. Чехова Мелихово (село Мелихово). При этом, от дома до центра Серпухова 15 км (25 минут на автомобиле), до центра Чехова 15 км (20 минут на автомобиле).
Причина продажи квартиры работа и место жительства в другом месте. При обсуждении цены возможен торг. Вся сумма указывается в договоре.
Возможно предоставление в качестве бонуса (без дополнительной оплаты) горного велосипеда модели Felt (21 скорость, передние амортизаторы, мягкое седло, отличное состояние) прекрасная возможность посещения всех мест в поселке и окрестностях за короткое время и с пользой для здоровья.
Показы квартиры по предварительной договоренности примерно 1 раз в месяц. Показ документов в Москве в любое время. Просьба звонить с 12.00 до 18.00.